George Street Townhouses
George Street Townhouses
Traditional Land Owners: Wurundjeri People
Builder: Dupuche Constructions Pty Ltd
Photography: Derek Swalwell
Media:
Houses - Issue 52
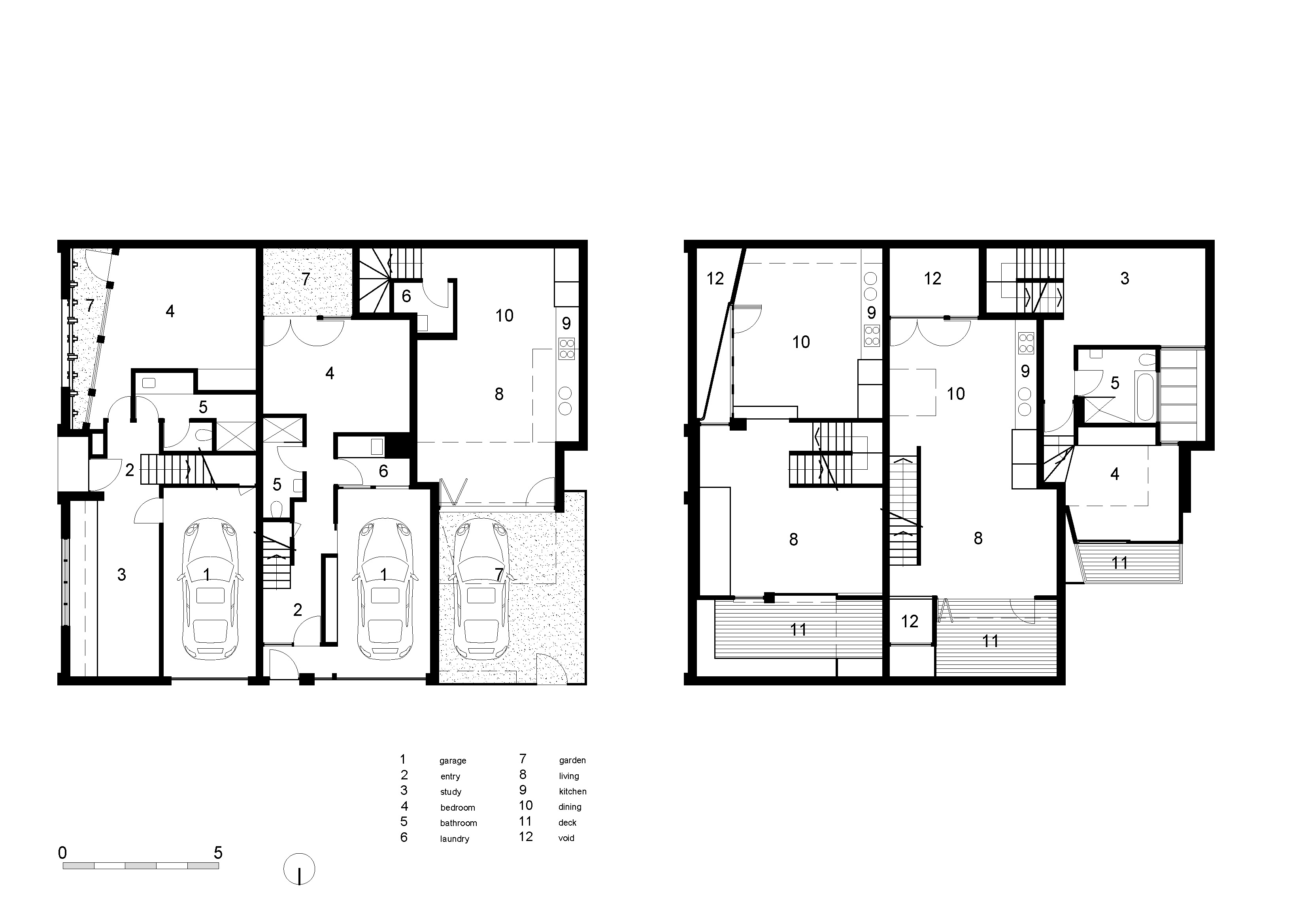
View plans here
On a site accommodating a non-descript factory the Clients’ brief was for a best fit multiple residential building with realisable commercial value. The existing factory building remains as a memory of the light industrial history of this corner site in Fitzroy. The new building clearly expresses a change of use for its site and represents the evolution of an inner city suburb. The new form that grows from this ground floor masonry plinth is lightweight yet muscular in its form, blank in daylight becoming delicate and transparent in the night.
The three dwellings are contained within a collection of forms which are enigmatic. This building challenges the viewer to look up and decipher the meaning and inner workings behind the silent, sober forms. There is a trajectory of the building from day into night. Blank and inscrutable by day, at night it transforms into a series of lanterns equally mysterious but also public spirited in their illumination.
This project is part of a series of buildings from this practice which attempt to re-interpret Brutalism in architecture, seeking to capture the strength and drama of brutalist form and emphasise the texture and luxury of blank surfaces, the possibilities of hand-crafted modernism.








