Balam Balam Place
Balam Balam Place
A civic space in the heart of Brunswick, providing affordable spaces for artists and the broader community.
Traditional Land Owners: Wurundjeri People
Builder: McCorkell Constructions
Photography: Derek Swalwell
Collaborators: Openwork, Finding Infinity
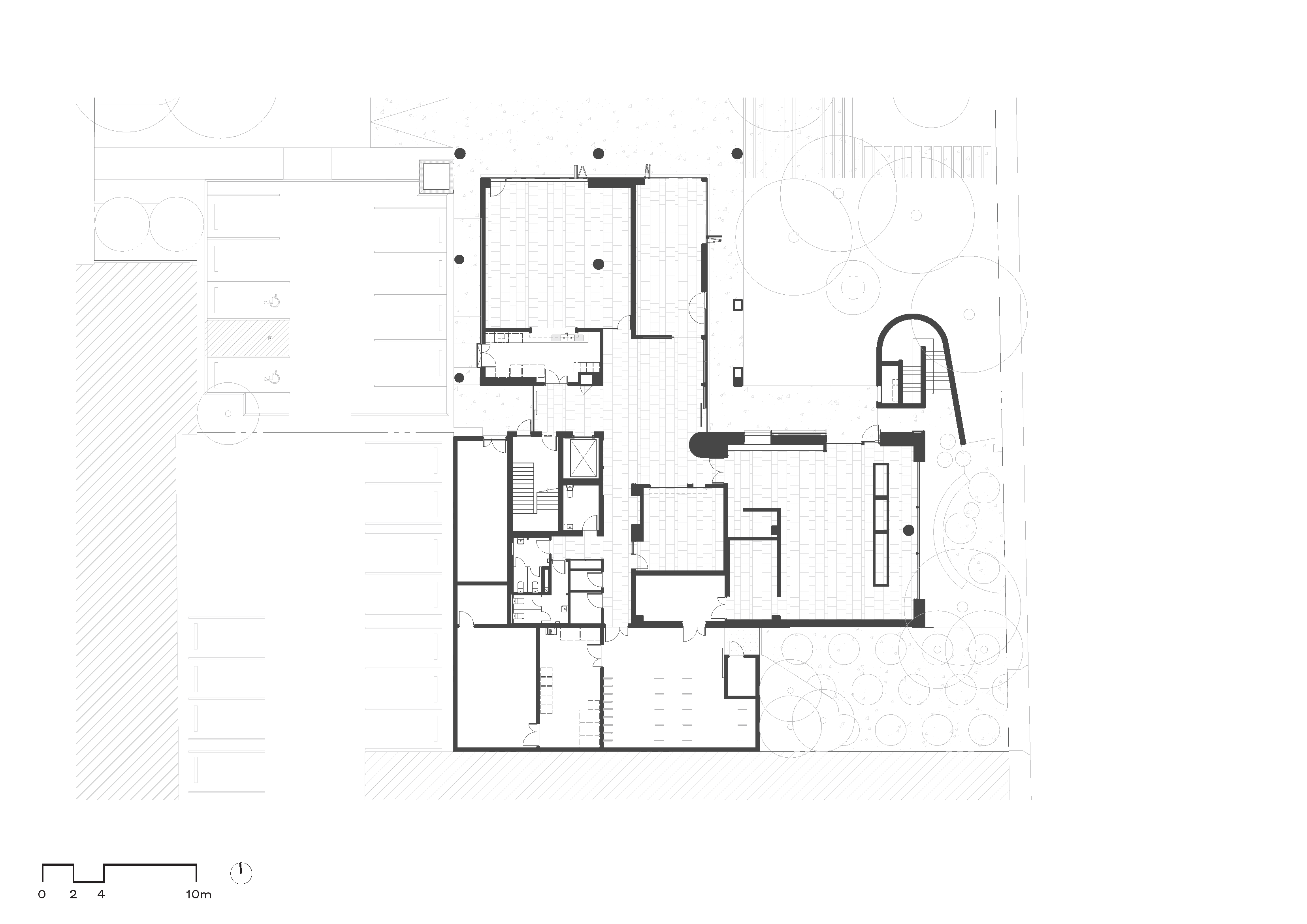
View plans here
Balam Balam means ‘White Butterfly’ in the Woi Wurrung language, a name given to this place by Traditional Owners. Balam Balam Place is a civic space in rapidly gentrifying Brunswick and provides affordable space for the community, including artists and other creative people seeking space to make and develop work. This public building is also home to the Merri-bek run Maternal Child Health Centre and Blak Dot Gallery – a First Nations art space.
Kennedy Nolan led a highly functional collaboration with Openwork and Finding Infinity to deliver a campus of buildings in a new park, including the five story ‘South Building’, a refurbished 1880’s heritage ‘House’, and ‘School Frame’ – an adaptive reuse of the 1950’s St Ambrose school buildings.
Community consultation was critical in the brief development revealing a demand for robust undercover space, a desire to privilege the cultural heritage of the school buildings over the colonial heritage of the House and the need for flexible and robust indoor and outdoor spaces for creative functions - including performance art, construction projects and the functional and social requirements of passionate, creative and dynamic operators - ‘The Projects’.
The collective charter at Balam Balam Place was for it to ‘give more than it takes’- socially and environmentally. In consultation, Wurundjeri elders emphasized the importance of Caring for Country which was honoured through a highly energy efficient new building, maximum stormwater harvesting & site permeability and re-establishment of living ecology. There are moments of pride and learning - places to support ceremony, a mural by Reko Rennie at the main entrance and naming of the place by Wurundjeri Elders. This is a contemporary building embedded in Country.
We are immensely proud of Balam Balam Place - joyful in process and wondrous to watch in occupation over time.















“There are moments in the building, gentle, thoughtful moments that allow for the play of light or breeze or people to transport you out of your everyday and into a remarkable hybrid of civic and domestic interaction. The way a building can show the strength of infrastructure, and the care of home is not an easy task but it has been done here with such rigour and generosity it invokes a reciprocal response from those that come to be here, they arrive in awe of it and leave in love with it.”
Joseph Norster - Co- Director, The Projects, managers of Balam Balam Place