William Street Chambers

William Street Chambers

A cold shell fit-out project for CRM Chambers and GPT at 181 William Street Melbourne.

Traditional Land Owners: Wurundjeri Woi-Wurrung People
Builder: EMAC Constructions
Photography: Sean Fennessy



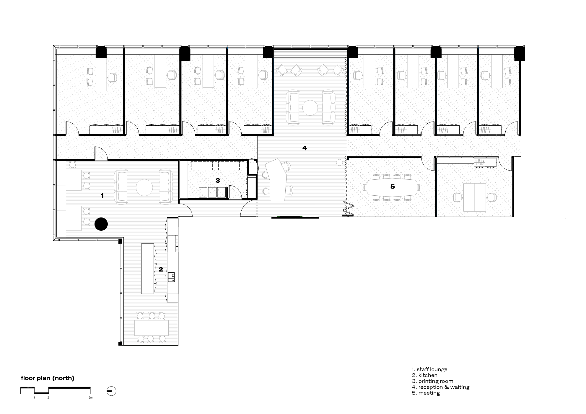
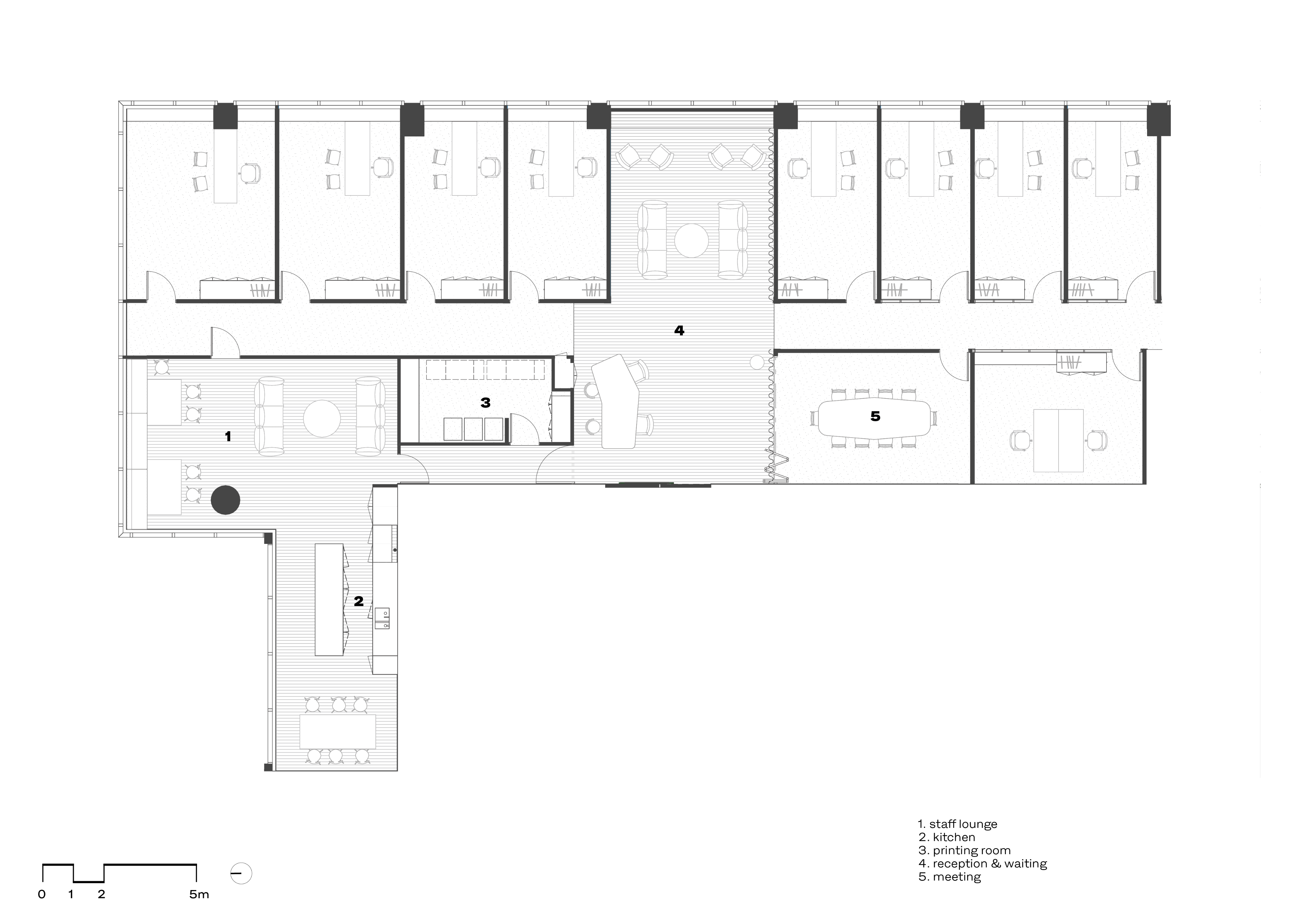
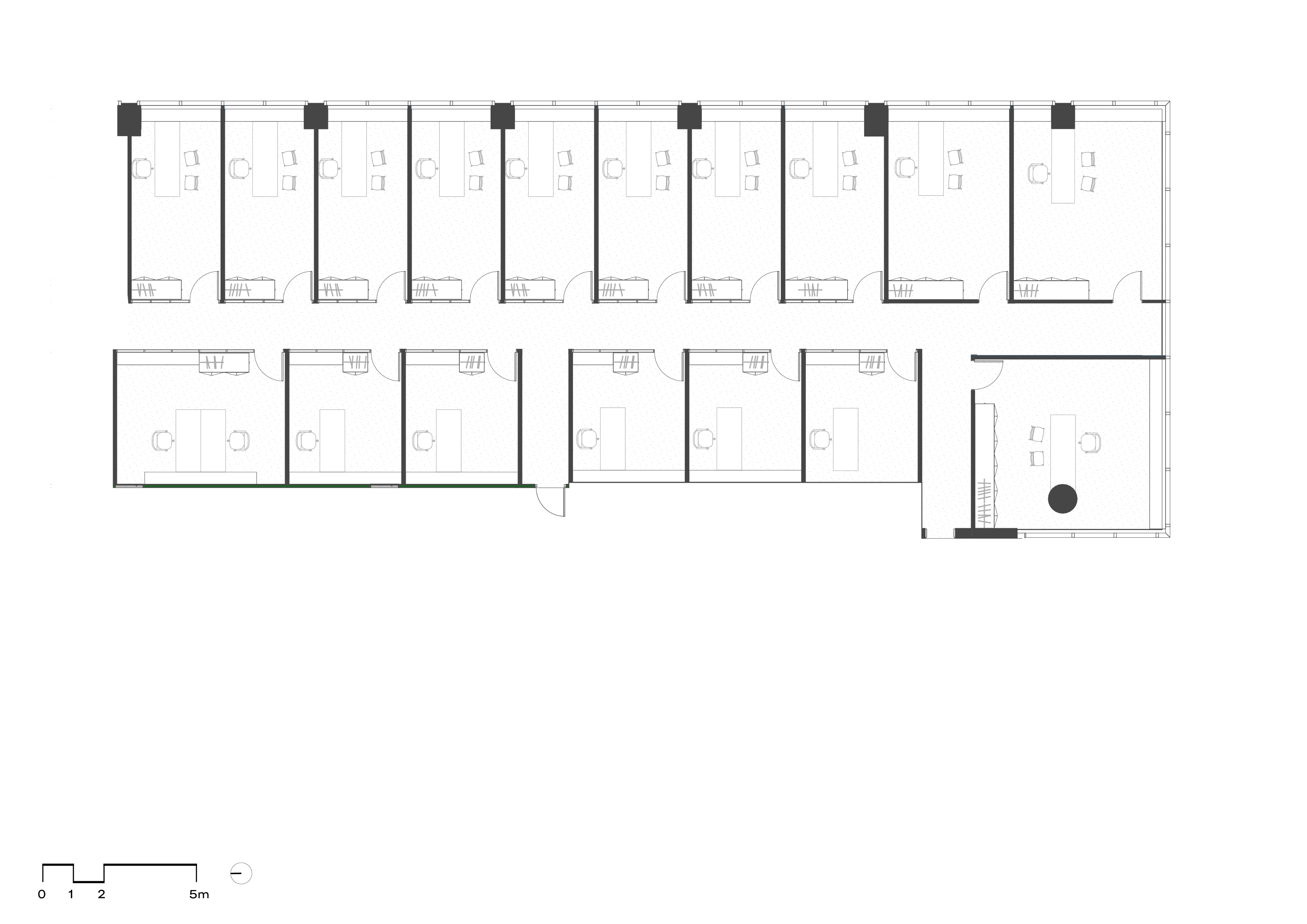
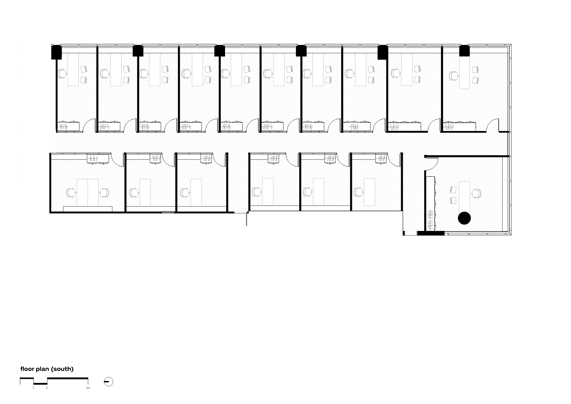
View plans here

William Street Chambers is a cold shell fit-out project for CRM Chambers and GPT at 181 William Street, Melbourne for half a floor level measuring approximately 1560sqm.  Kennedy Nolan were approached by a group of Barristers who were forming a new Chambers and were interested in making an environment distinct from the conventional offering.

Essential to the design outcome was to ensure that individual chambers would be capable of customization acknowledging the unique nature of  Barrister’s Chambers as a collective of allied individuals rather than a singular corporate identity.  Visually and acoustically, the chambers are reminiscent of domestic settings in recognition of the need for comfort during often very long hours of work.  The public and shared areas however, needed to be cohesive and reflect a consistent aesthetic and experiential quality reflecting the shared values of the Barristers who came together to form the Chambers.  These values included an important aspiration for the project - to make an environment sensitive to the often extremely stressful situations that many of the Barristers’ clients face, including significant fines or prison sentences. To meet this need, we were careful to avoid cues or symbols of institutional, corporate or legal settings, and focused on making the spaces quiet, soft, private and natural.  They are dignified, but not intimidating.

A compressed project program required an elaborate and concise consultant coordination process between the base build design engineers and fit-out consultant team.   The brief included 26 separate chambers, each with high level acoustic separation and privacy.  In addition to the individual chambers there is a central reception zone and meeting room with a nearby shared staff lounge, kitchen and staff dining. 

Our approach was to soften the corporate edge of the overall space, to step away from the conventional projection of the law as expensive, prestigious and stuffy and to make a space which could provide calm, softness and even a sense of refuge.  Manipulating the immutable requirements of building owner requirements, regulations, acoustic performance and technical infrastructure, we sought to represent difference through a warm and textural material palette and public spaces which afford privacy, natural light penetration and domestic comfort. 

The project was successfully delivered from Concept Design through to project completion and client handover within a succinct 9-month period.  The process demonstrates our capability to work within a compressed project timeframe, meeting project budget and site specific and restrictive constraints whilst creating a considered and distinct design outcome for our client.

“We are incredibly indebted to Kennedy Nolan for creating a space which enables us and our clients to feel calm and enables us to contribute to the administration of justice with perspective and rigour.” 

Moya O'Brien - Parnell’s Barristers