Matthews House
Matthews House
A mid-century home, rich in materiality and a strong sense of restraint.
Traditional Land Owners: Wurundjeri People
Builder: IBuildM
Landscape: Amanda Oliver Gardens
Photography: Derek Swalwell
Media:
Vogue Living - Extraordinary Australian Kitchens & Bathrooms, Jan 2022
View plans here
Mid-century architecture is so hot right now, perhaps reflecting a recognition of the optimism and innovation of this design expression. Inevitably another consequence of this is a reductive and shallow aestheticization, which rather misses the point of this often frugal and rational movement and a tendency we were anxious to avoid. The house presented to us as a curious hybrid of mid-century style with somewhat patrician planning incorporating served and servant spaces. Conceptually then, our aspiration for this project was grounded in an elevation of an eroded and imperfect twentieth and century aesthetic combined with a strengthening and in some cases correction of an established planning principle.
We find it useful to look at projects like these as a series of problems to be solved or a suite of optimisations to be achieved. In this case, the opulent late modernist interiors were not shown to their best advantage – an inevitable result of incremental change eroding their original impact and shifting standards of amenity and function. We also found that the exterior expression was mis-matched to the elegant interiors and though the garden orientation appeared good on plan, it remained strangely remote.
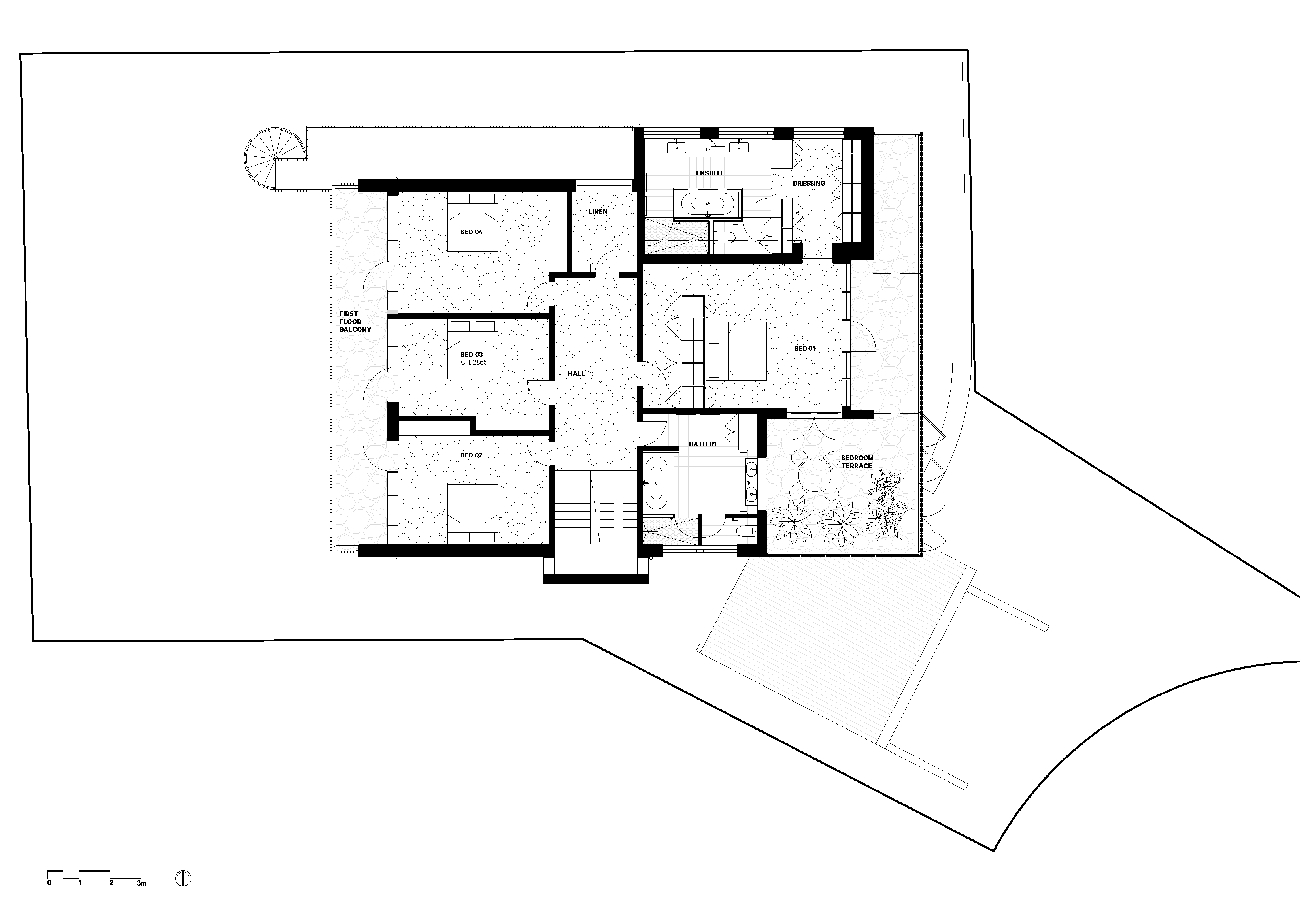
Our work here consists of a suite of interventions – editing the entry narrative by extending the rich materiality of the interior, reclaiming external space to the private realm and re-presenting the house to the street with a simpler, stronger gesture. The interior approach involved triaging the internal fabric – celebrating the highest quality parts through restoration, pulling away the superfluous and correcting and strengthening colour palettes. Some parts, such as the kitchen and the bathrooms are completely new –and involved riffing off the lovely existing tertiary colour palettes to inject freshness and relieve austerity.
Liveability was achieved through a rigorous approach to enclosure and privacy, heightening the entry experience, reinforcing the layered functions of the house to elevate the experience of living spaces as separate from operational spaces and connecting the house vertically and horizontally to the outside spaces.






























