Research Primary School
Research Primary School
A school refresh to create flexible learning environments and support project-based learning and outdoor learning.
Traditional Land Owners: Wurundjeri People
Builder: Newpol
Photos: Emily Bartlett
Awards:
2021 Victorian Architecture Awards: Award – Educational Architecture
2021 IDEA Interior Design Excellence Awards: Winner - Institutional
2021 Victorian School Design Awards: Winner - Best School Project between $5 Million and $10 Million
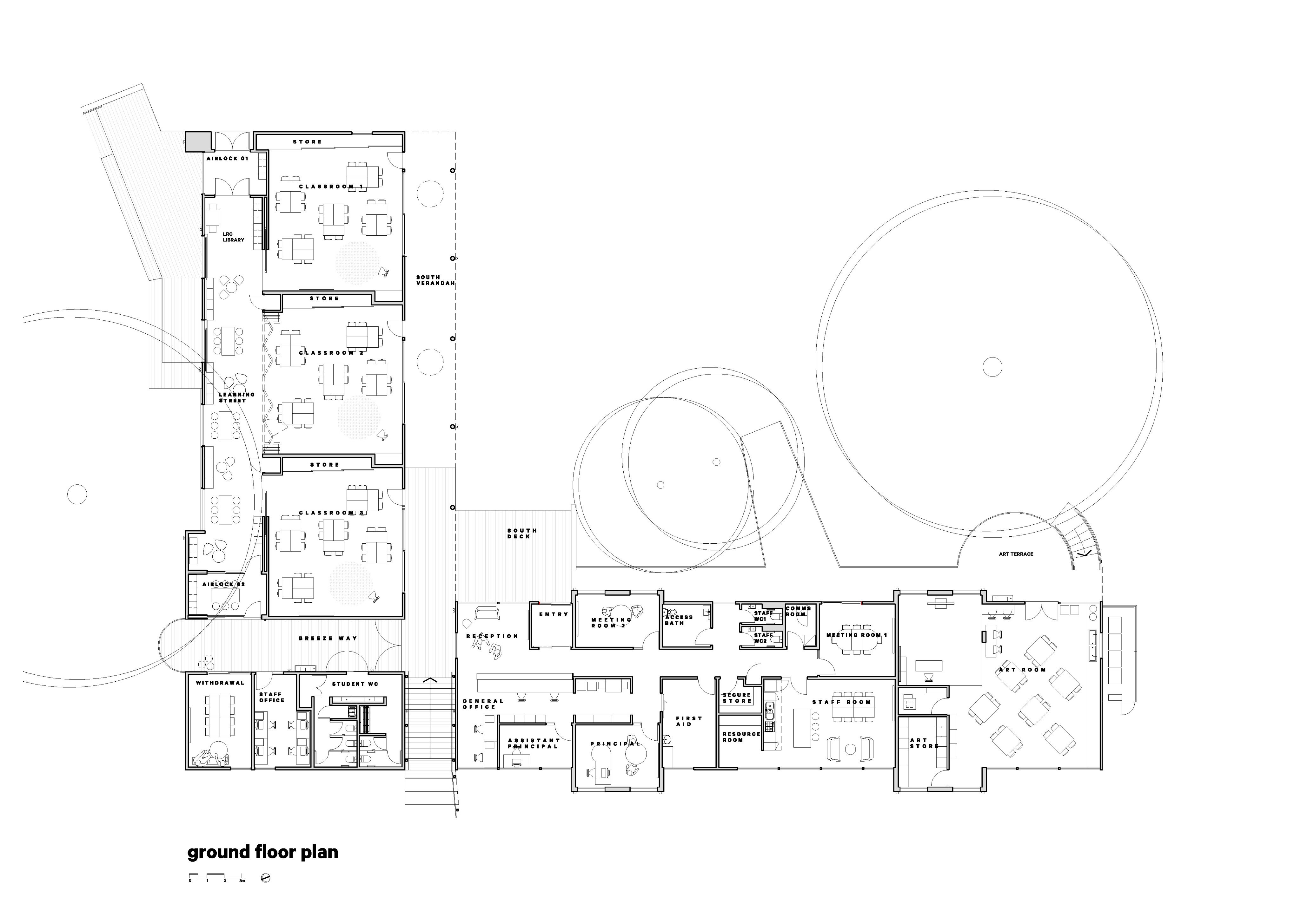
View plans here
In July 2018, Kennedy Nolan was engaged to provide Principal Design Consultant services for Research Primary School Modernisation.
Situated on a steeply sloping treed site, there were significant issues to be resolved: difficult access, non-conforming facilities, and significantly over entitled areas. The project involved the demolition of numerous buildings that had well exceeded their anticipated life span and were no longer fit for purpose. This has allowed for the creation of a central tiered gathering area and play area, and provides universal access, while also improving wayfinding, and the visual connection and safety across the site.
A new Junior School building at the front of the school enhances the school presence and sense of arrival. The Junior School provides a flexible learning environment that supports both project based learning and outdoor learning.
The adjacent classroom block has been refurbished to create a new Administration and Art Centre providing improved staff and administration facilities, as well as increased flexibility and meeting areas with a strong connection to the external environment. The new building and landscape works have been carefully sited to protect existing significant trees and enhance the enjoyment and use of the site while addressing significant storm water issues.












