Secret Garden
Secret Garden
A small place in a large and wild, but beautifully tended garden.
Traditional Land Owners: Wurundjeri People
Builder: Overend Constructions Pty Ltd
Photography: Derek Swalwell
Media:
Design Anthology - Australia Edition, Issue 06
View plans here
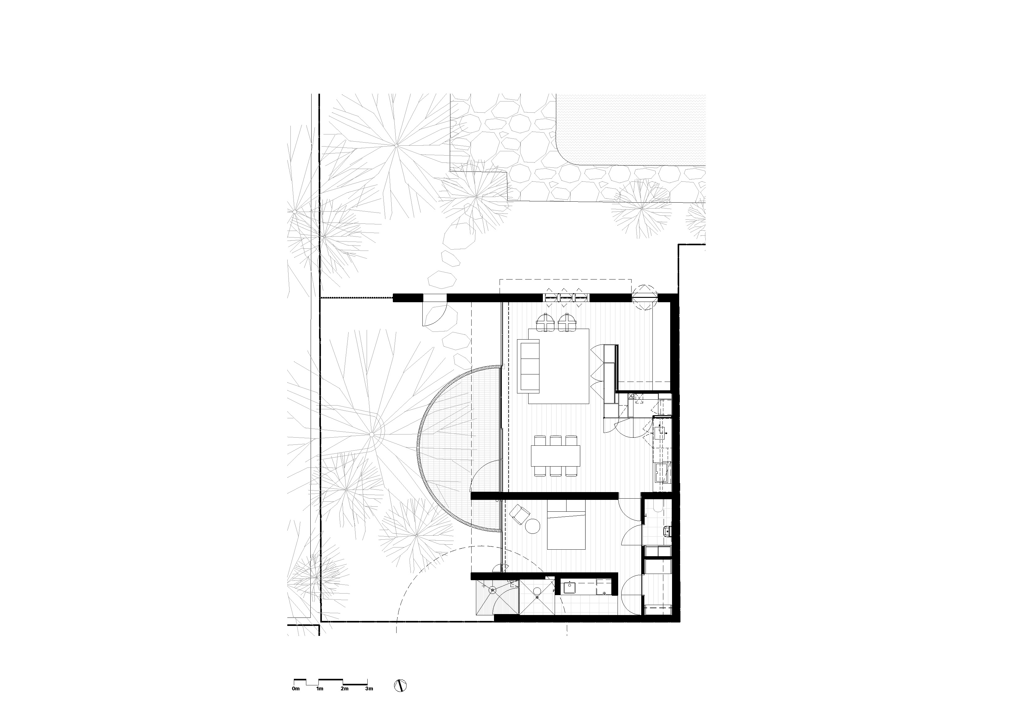
We were asked to make a small place in a large and wild, but beautifully tended garden. The building does not conform to conventional taxonomies – it is a place to be in the garden, a pavilion, but you can sleep there and eat there and work there. We have called it the Secret Garden because it has some of the qualities of the Secret Garden in Frances Hodgson Burnett’s novel – comprising, as it does, of a walled and sequestered garden entered through an intriguing arched gateway. It was certainly conceived as a garden structure.
Every aspect of the building has been devised to evoke a sense of experiential whimsy leavened by quietude, an abstruse experience made calm by the use of sombre tone and texture.
Morphologically, the building consists of a garden wall pierced by three elements – an oculus window, the arched garden gate and an anomalously scaled thick-mullioned window bay. An extruded roof form projects over the wall – tiled and strapped, an abstraction of Edwardian half timbering. All the elements were developed after the manner of Arts and Crafts Jacobean revival – setting up a dialogue with the Queen Anne main house. The architectural styles and idioms are compatible but distinct, generated through a playful and light-hearted approach to historical references.
The plan is predicated on the solemn formality of a Lutyens/Jeckyll approach – a drawn-out entry sequence to alter ones emotional temperature and emphasise a change in pace and place. The approach is through dense garden, initial entry through a small and decorative aperture which introduces drama through compression and release and finally the threshold is elevated by the luxury and atmosphere of its garden setting.
Muted interior space encourages an outward perspective – the garden fluoresces when viewed from the soft, pale rooms. At night, the richness of the interior colour ambit shifts – the rich earthy tones flaring warmly under illumination, rendering a comforting chiaroscuro.
This is a modest place in size and function, the pleasure in it comes from its intense connection to garden, while resolutely remaining distinct from it. It is a celebration of threshold, of approach, privacy and retreat.






















